

|
Tsinghua University in collaborazione con lo studio di progettazione studio Link-arc di NewYork ha progettato ‘il padiglione della Cina’ per l’EXPO Milano 2015 “Land of Hope”. La struttura del tetto ondulato è pensata come un elemento galleggiante al di sotto del quale prendono forma gli spazi per i programmi culturali ed espositivi .Il padiglione cinese è il secondo più grande padiglione dopo quello italiano ed è caratterizzato da una struttura complessa ma affascinante. |


|
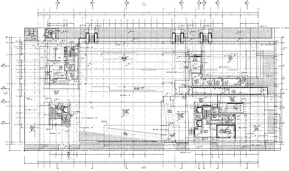
L’edificio ha una pianta rettangolare dimensioni 35.0x74.0m e copertura curvilinea che raggiunge quota massima 17.0m. Le seguenti figure illustrano la complessa geometria dell’edificio. |







|
Le fondazioni sono di tipo superficiale: platea spessore costante 600mm e travi di sezione 450x600mm e 3000x600mm; l’estradosso delle fondazioni si attesta a quota -1.950m. Pareti in calcestruzzo armato spessore 300mm e pilastri sezione 750x750mm si elevano fino a quota -0.300m |



|
Le elevazioni sono a telaio con controventi a croce e controventi a “V”. Le colonne sono in profili HEM220, HEM300, tubi 200x200x12, tubi 150x150x12.5 . I controventi sono in profili UPN180 singoli quando sono a croce, ed UPN180 doppi quando sono a “V”. Quando a vista, i controventi sono in fune d’acciaio diametro 20mm. Gli impalcati sono a graticcio di travi HEA300, HEA340, HEA550 e HEB800. Nella figura sopra si colgono in colore azzurro le colonne HEM300, in colore blu le colonne HEM220, in colore rosso e verde le colonne in tubi 200x200x12mm. I controventi UPN180 sono in grigio. Le travi di impalcato HEA300 sono in azzurro, le HEA340 in verde, le HEA550 in giallo e le HEB800 in arancione Gli impalcati hanno lamiera grecata con getto collaborante in calcestruzzo armato; le travi sono tutte piolate. |





|
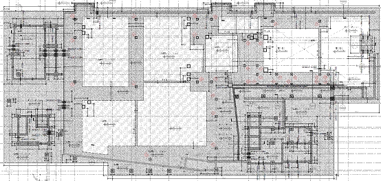
La copertura ha un’orditura principale in acciaio, sulla quale si appoggiano le travi curvilinee in legno; queste ultime comunemente chiamate “rafters”. Tutte le travi curvilinee, sia in acciaio che in legno, sono trasversalmente collegate dagli arcarecci, comunemente chiamati “purlin”. Si evincono nella figura sopra i rafter gialli in acciaio, i rafter verdi, i purlin blu, verdi e viola. I rafter sono cassoni di sezione 200x560mm; i purlin blu e verdi sono cassoni di sezione 200x460mm; i purlin viola sono cassoni di sezione 200x360mm. Le lamiere per la composizione dei cassoni sono generalmente di spessore 15mm; fanno eccezione le lamiere delle ali dei rafter gialli che hanno spessore 40mm. Hanno spessore 40mm anche le ali dei pulin verdi. Infine il purlin azzurro è composto da lamiere spessore 35mm. I rafter in legno hanno sezione 200x560mm, ad eccezione delle estremità dell’edificio dove hanno sezione 200x400mm. I purlin hanno sezione 200x460mm, ad eccezione delle campate d’estremità dove hanno sezione 200x340mm. |


|
La stabilizzazione del graticcio di copertura è ottenuta con inserimento di croci di controventamento in barre tonde lisce messe in carico con tenditore. I diametro dei controventi è 22mm, 33mm e 39mm. |








Per inviare un messaggio: hsh@iperv.it