Costruzione del nuovo Padiglione Australiano presso i giardini della Biennale di Venezia
Committente dell’opera: Australian Council -
Australia
Progetto architettonico: Denton Corker Marshall Pty Ltd
Imprese di Costruzioni: Sicop Costruzioni e Restauri s.r.l. - S.i.r.co s.r.l. - FIEL s.p.a.
Progetto esecutivo/costruttivo delle strutture
commissionato dalle imprese esecutrici: Boaretto e Associati s.r.l. - Ing. Luca
Boaretto
Testo e immagini gentilmente concessi da Boaretto e Associati s.r.l.
Il Padiglione Australia si colloca nel recinto della “Biennale d’Arte” di Venezia presso i Giardini Napoleonici di Castello a Venezia. Fisicamente la struttura sorge in prossimità del Rio dei Giardini è formata da un corpo di fabbrica principale e da due strutture accessorie: una rampa di accesso e un locale impianti. Il corpo di fabbrica principale si compone di due livelli principali: un piano seminterrato dove si collocano locali tecnici e di servizio e un piano rialzato ad uso pubblico ed espositivo. È inoltre presente un cavedio impiantistico interno. L’accesso al piano seminterrato, riservato al solo personale di servizio, avviene dal camminamento parallelo al canale. Il pubblico accede invece al piano espositivo attraverso la copertura del locale impianti, raggiungibile dalla rampa di accesso esterna. Internamente i volumi sono tra loro collegati da una scala in cemento armato e da un ascensore posizionati sull’angolo nord-ovest. È altresì presente una piattaforma elevatrice di dimensioni pari a 4.5x3 metri posta sull’angolo sud-ovest.
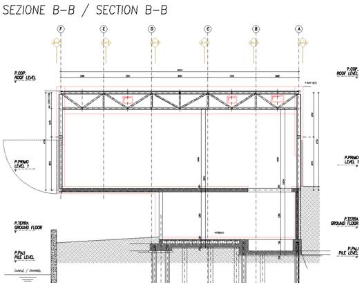
Planimetricamente la struttura presenta dimensioni regolari, ma diverse tra piano seminterrato e piano espositivo a causa di un arretramento del piano seminterrato rispetto al filo esterno del fabbricato (lato canale); la differenza geometrica tra i due livelli crea una aggetto di circa 7 metri verso il canale e permette il passaggio pedonale lungo il Rio dei Giardini.
Esternamente la struttura si presenta come una scatola, rivestita da pannelli di dimensioni circa 3x3 m, in pietra nera. I pannelli sono modulari e sono completamente appesi alle strutture portanti. Per l’interfaccia tra struttura portante e pannelli sarà predisposta un opportuna sottostruttura di cui si dirà in seguito. Architettonicamente, quattro di questi pannelli sono realizzati con elementi apribili.
La struttura si compone di due piani fuori terra. Il primo dei due, interamente in calcestruzzo armato, costituisce di fatto un rigido supporto di base a sostegno dell’elevazione superiore, realizzata interamente in carpenteria metallica, caratterizzata dalla presenza di una porzione a sbalzo di dimensioni importanti rispetto al volume dell’intero edificio. Un orizzontamento rigido, anch’esso in carpenteria metallica, va a chiudere la sommità dell’edificio, fungendo da copertura. Dal punto di vista sismico, in considerazione anche della bassa sismicità del sito, la struttura nel suo complesso viene progettata per rimanere in campo elastico, in maniera tale da contenere le deformazioni orizzontali a valori compatibili con la rigidità dell’involucro in elementi lapidei. Il corpo di fabbrica principale e le strutture accessorie sono fondate su micropali con diametro medio reso di 300 mm lunghi 18 metri. Questi sono collegati tra loro da una platea e da travi di fondazione. Il solaio del piano espositivo, progettato per un sovraccarico accidentale di 750 kg/mq è realizzato con due tecnologie differenti: la porzione al di sopra del piano seminterrato è realizzata in soletta piena in c.a. dello spessore di 25 cm mentre la porzione a sbalzo è realizzata con soletta in c.a. con calcestruzzo alleggerito dello spessore di 25 cm su lastre tralicciate autoportanti in acciaio sorrette a loro volta da travi tralicciate autoportanti in acciaio (tipo REP). Le strutture verticali sono formate da strutture reticolari in carpenteria metallica realizzati con profili commerciali a sezione aperta uniti tra loro con giunzioni bullonate. Per una più esaustiva descrizione si rimanda agli schemi allegati.





Al fine di determinare la risposta sismica della struttura si adotta il metodo di analisi modale con spettro di risposta o “analisi lineare dinamica” (R.I. §7.3.3.1). Nell’analisi modale, che rappresenta il metodo di riferimento per determinare gli effetti dell’azione sismica sia su sistemi dissipativi che non dissipativi, l’equilibrio è trattato dinamicamente e l’azione sismica è modellata direttamente attraverso lo spettro di progetto. Per studiare il comportamento delle struttura è stato realizzato un modello tridimensionale ad elementi finiti capace di rappresentare in modo adeguato le effettive distribuzioni spaziali di massa, rigidezza e resistenza della struttura. Il modello rappresenta l’intera struttura nel suo complesso, parte seminterrata e parte superiore in carpenteria metallica. Le travi, le colonne in carpenteria metallica e le travi di fondazione in c.a. sono modellate con elementi beam; la platea di fondazione, le pareti del piano seminterrato e la soletta della galleria espositiva centrale è stata invece modellata con elementi plate.
Il modello viene realizzato per lo studio complessivo della struttura; in particolar modo con tale modello sono state determinate:
- risposta strutturale alle azioni sismiche;
- sollecitazioni pali di fondazione;
- sollecitazioni struttura in c.a.;
- sollecitazioni struttura in carpenteria metallica;
Nella modellazione gli orizzontamenti sono considerati infinitamente rigidi nel proprio piani e i pali sono modellati come molle (le costanti elastiche assunte sono state determinate dalla relazione geologica/geotecnica) . L’analisi del manufatto è stata condotta con l’ausilio del codice di calcolo Straus7.

VISTA SUD-EST

VISTA SUD-OVEST
Modo 1:
![]()

![]()
Modo 2:
![]()

Modo 3:
![]()


STRUTTURA SEMINTERRATA

STRUTTURA IN CARPENTERIA METALLICA

STRUTTURA IN CARPENTERIA METALLICA

OPERA ULTIMATA

OPERA ULTIMATA

OPERA ULTIMATA
Per inviare un messaggio: hsh@iperv.it